
Ulica: | Rizlingová |
---|---|
Mestská časť: | Zlatovce |
Obec: | Trenčín |
Okres: | Trenčín |
Kraj: | Trenčiansky kraj |
Druh: | Domy |
Typ: | Predaj |
Typ domu: | Rodinný dom |
RD 1A - voľné, RD 2A- predané, RD 3B - rezervované, RD 4B - predané
KAPPA Reality – po úspechu projektu moderných mezonetov so záhradou prinášame novinku - na predaj až 4 rodinné domy s GARÁŽOU a ZÁHRADOU v meste Trenčín. Nehnuteľnosti sa nachádzajú v mestskej časti Zlatovce, v atraktívnej novovybudovanej lokalite nadväzujúcej na obytnú zónu Rezidencia Vinohrady v blízkosti Rizlingovej ulice.
Rodinné domy budú postavené ako súčasť radovej zástavby štyroch domov, pričom každému bude patriť vlastná záhrada, vlastná garáž a ďalšie 2 parkovacie miesta pred domom. Okrem toho bude každý dom disponovať aj modernou ekologickou zelenou strechou, ktorá okrem energetickej úspory zníži hlučnosť i prašnosť.
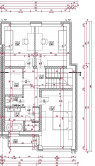
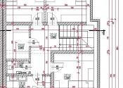
Rodinný dom 4B – úžitková plocha 144,71 m2, zastavaná plocha 103,03 m2
1. Nadzemné podlažie (prízemie) - denná časť:
2. Nadzemné podlažie - nočná časť domu:
Novostavba bude dokončená do štádia holodom, v prípade záujmu je možné aj dokončenie na kľúč:
Začiatok výstavby je plánovaný na 10/2024, pričom možnosť rezervácie je už teraz. Dokončenie do štádia holodom je naplánované na 08/2025 a bude zahŕňať:
LOKALITA – novostavba sa nachádza vo veľmi obľúbenej, rýchlo sa rozvíjajúcej lokalite mesta. Vyrástli tu nové reštaurácie, detské ihriská, kaviarne, k dispozícii je lekáreň, zastávka MHD, základná škola a materská škola, obchody.
Odporúčam vidieť! Bližšie informácie o materiáloch a technológiách Vám radi poskytneme na osobnom stretnutí.
Uvedená cena je konečná a nenavyšuje sa! V cene je zahrnuté hypotekárne poradenstvo, provízia realitnej kancelárie a uhradenie správneho poplatku za návrh na vklad do katastra nehnuteľností.