Používame cookies

Súbory cookie a ďalšie technológie sledovania používame na zlepšenie vášho zážitku z prehliadania našich webových stránok, na to, aby sme vám zobrazovali prispôsobený obsah a cielené reklamy, na analýzu návštevnosti našich webových stránok a na pochopenie toho, odkiaľ naši návštevníci prichádzajú. Viac info

 

REZERVOVANÉ | 4 izbový RD A | Hrušková ul., Trenčín

Ulica: Hrušková
Mestská časť: Zlatovce
Obec: Trenčín
Okres: Trenčín
Kraj: Trenčiansky kraj
Druh: Domy
Typ: Predaj
Typ domu: Rodinný dom
289 000 €

Popis nehnuteľnosti

RD A - rezervovaný, RD B- voľný,

KAPPA Reality – po úspechu projektov rodinných domov a mezonetov so záhradami i s garážami prinášame ďalšiu novinku - na predaj moderné dvojpodlažné rodinné domy na Hruškovej ulici v meste Trenčín (mestská časť Zlatovce). Domy budú stáť v atraktívnej novej lokalite nadväzujúcej na obytnú zónu Rezidencia Vinohrady, pričom v ponuke sú len dva exkluzívne domy, ktoré sú súčasťou moderného dvojdomu.

Pri navrhovaní dispozície a situovaní domov na pozemkoch sa kládol maximálny dôraz na súkromie obyvateľov a možnosť nerušeného relaxu na záhrade ako aj v interiéri. Okrem toho budú domy disponovať aj modernou ekologickou zelenou strechou, ktorá okrem energetickej úspory zníži hlučnosť i prašnosť.

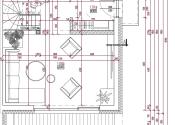
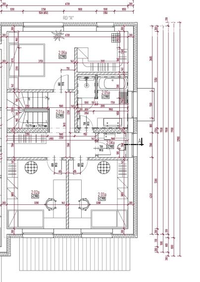
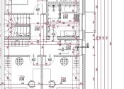
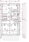
Rodinný dom A – úžitková plocha 121,74 m2, zastavaná plocha 73,11 m2

1. Nadzemné podlažie (prízemie) - denná časť:

  • zádverie s úložným priestorom 
  • WC a technická miestnosť s oknom
  • krásny veľký priestor (47,44 m2) obývacej izby spojenej s kuchyňou, schodiskom a s výstupom na terasu, výhľad do záhrady cez okno veľkého formátu
  • schodisko
  • terasa (17,08 m2)

2. Nadzemné podlažie - nočná časť domu:

  • chodba s úložným priestorom
  • hlavná spálňa (18,48 m2) s vlastným samostatným šatníkom 
  • dve priestranné detské izby (12,46 m2)
  • kúpeľňa s plánovanou vaňou, sprchovým kútom a oknom (8,15 m2)
  • samostatné WC

Novostavba bude dokončená do štádia holodom, v prípade záujmu je možné aj individuálne dokončenie:

  • Dokončenie do štádia ŠTANDARD - €20.000,-
  • Schodisko - €3.000,-
  • Kuchynská linka - €9.800,-
  • Prístrešok na auto - €7.600,-

Začiatok výstavby je plánovaný na 07/2025, pričom možnosť rezervácie je už teraz. Dokončenie do štádia holodom je naplánované na 05/2026 a bude zahŕňať:

  • dvojpodlažná 4 izbová tehlová novostavba v stave holodom,
  • úžitková plocha 121,74 m2,
  • pozemok o celkovej výmere 237,18 m2
  • 3 parkovacie miesta pred domom,
  • obvodové nosné tehlové murivo hr. 300 mm,
  • ekologická zelená strecha,
  • zateplená fasádna omietka,
  • vstupné dvere, okná – 6 komorové – izolačné 3 sklo zn. Salamander, HS portál na terasu,
  • elektrická a stavebná príprava pre vonkajšie hliníkové žalúzie,
  • strojové omietky, biela maľba v celom dome, strojové potery,
  • kompletná vnútorná elektroinštalácia, vypínače, zásuvky (bez svietidiel a lustrov),
  • podlahové vykurovanie v celom dome,
  • tepelné čerpadlo,
  • elektrická a stavebná príprava pre klimatizačnú jednotku,
  • PC rozvody v každej izbe,
  • napojenie na inžinierske siete – voda, elektrická energia, kanalizácia,
  • rozvody vody a kanalizácie v dome (bez osadenia kuchynskej linky),
  • chodníky a parkovacie miesta zo zámkovej dlažby,
  • terasa zo zámkovej dlažby,
  • oplotenie,
  • kompletná dokumentácia.

LOKALITA – novostavba sa nachádza vo veľmi obľúbenej, rýchlo sa rozvíjajúcej lokalite mesta. Vyrástli tu nové reštaurácie, detské ihriská, kaviarne, k dispozícii je lekáreň, zastávka MHD, základná škola a materská škola, obchody.

Odporúčam vidieť! Bližšie informácie o materiáloch a technológiách Vám radi poskytneme na osobnom stretnutí.

Uvedená cena je konečná a nenavyšuje sa! V cene je zahrnuté hypotekárne poradenstvo, provízia realitnej kancelárie a uhradenie správneho poplatku za návrh na vklad do katastra nehnuteľností.

Vlastnosti

Status:
aktívne
Vlastníctvo:
osobné
Plocha pozemku:
237 m2
Typ zeme:
rovina
Úžitková plocha:
122 m2
Stav:
novostavba
Počet izieb:
4
Energetický certifikát:
A
Typ budovy:
tehla
Typ výbavy:
holopriestor
Terasa:
áno
Rok výstavby:
2025
Rok kolaudácie:
2026
Počet poschodí od prízemia vyššie:
2
Celková plocha:
122 m2
Terasa plocha:
17 m2
Počet vonkajších parkovacích miest:
3
Inžinierske siete:
áno
Voda:
áno
Elektrika:
áno
Kanalizácia:
áno
Kanalizácia - na pozemku - kanalizácia:
áno

Informatívna úverová kalkulačka

Pozrieť na mape

Maklér

Miriam Červeňanová

Miriam Červeňanová

maklér

  • Slovensky
  • Česky

Radi Vám poradíme

Podobné nehnuteľnosti